行業資訊
給水排水設計過程與方法{新手必讀}
對于剛從事給建筑排水設計的新手往往只知道要查規范去畫圖,而對一個工程如何展開、各專業如何提資協作,直到竣工驗收,并沒有一個清晰準確的認識。為了讓大家更快進入設計師的角色,先將此文奉上。
工作階段劃分
1、設計階段:
項目建議書——可行性研究報告——初步設計(擴初設計)——施工圖設計——施工圖審查、消防審查、人防審查。
2、施工階段
圖紙會審——工地處理——竣工驗收。
設計工作流程
施工圖繪制按下面八個步驟進行,根據情況也可交叉進行:
1、召集各專業開會,確定互相提資時間,列出工作計劃,建筑設計人員提供平面、立面、剖面。水專業提資應分3個階段,第一階段提管井位置、面積,電容量,水池容積,設備房面積等,一般時間在一周之內;第二階段提設備房布置,消火栓、濕式報警閥、水流指示器位置等,一般時間在中前期,約2~3周; 第三階段向概算專業提設備材料表,一般在出圖前一周。
其它專業應向本專業提的資料必須明確提資時間并寫入工作計劃。第一階段空調應提供空調補充水量,第二階段建筑應該提供衛生間大樣,時間也是在中前期,使本專業繪制完設備房大樣圖后能馬上進入衛生間大樣的繪制,提資的時間一定要堅持盡早。
第一次建筑提資一般比較簡單,在做第一階段提資的同時,仔細看一次圖紙,不清楚的地方一定要問,設計范圍要明確,管井分布面積要落實。
還要著手寫聯系函給業主要求提供相關資料(如市政自來最低水壓、管徑、位置,市政排雨水管道標高、位置等,由業主相關部門索要資料),明確做法(如住宅衛生間大樣畫到什么程度,水表怎么設置,有什么特殊要求等),確定管道材料等等,而且要業主來文答復,作為設計依據,發生糾紛時有據可查(保護自己),并作為歸檔資料的一部分歸檔。
2、寫統一技術條件,交審核人簽字認可。設計依據,建筑等級,計算的方法,各個系統的技術方案(如給水系統方案是否市政水直供、水泵-水箱供水),關鍵的技術指標(用水定額、消防用水量等),采用的管材一定要寫清楚,技術方案和設計的關鍵問題應該先與審核人取得一致意見,否則校審時才修改工作量太大,而且影響其它專業。
3、寫計算書。這階段先計算涉及向其它專業提資的內容,如水池容積計算,水泵選型等,計算完成后給校對人檢查。
4、向各相關專業第一階段提資,接受各專業提資。要嚴格按工作計劃提資,一定要按質量管理體系要求填寫提資單,出現問題的有據可查,避免承擔不必要的責任。提資單給校對及專業負責人簽字時應該提交相應部分的計算書。
5、畫圖,完成計算書余下內容,第二階段提資。繪制施工圖的順序應該是大樣圖--平面圖--系統圖。畫圖當中注意與建筑等工種的溝通和協商,經常發生建筑修改或某專業要求修改建筑不通知其它專業的情況。
6、設計人自校。提交校審時出現圖紙相互矛盾等錯誤是不應該的,而且不允許出現很明顯的簡單錯誤,例如立管編號錯編成其它系統的,編號重復等等。
7、校對審核。提交校審時應一起提交統一技術條件和計算書,白紙圖設計人應簽好名。
8、會簽,出圖。
畫圖注意事項
1、編制計算書時關鍵的技術指標(用水定額、消防用水量等)必須取自經審核人認可的統一技術條件。計算的步驟應詳細列出使用的計算公式,然后列式將數值代入計算,給水管徑可在給出計算公式后列表計算。所有需要計算的設計數據均應在計算書中表示,不能漏項,
2、圖紙目錄編排順序:設計總說明—平面圖—大樣圖—系統圖—設備材料表—采用的標準圖集。
3、全套圖紙字體大小要統一。一般說明中單線漢字高5mm,數字高3~4mm;尺寸及標高標注的數字高為2.5mm;使用window字庫中的ture type字型時在說明中為4mm,尺寸及標高標注的數字為2.5mm。
4、粗線寬度一般為0.5~0.6mm。
5、突出本專業內容。建筑提資的圖上有很多尺寸、標注是其專業本身的,如門窗號與尺寸、建筑選用的圖集做法等,可以刪去,只保留總尺寸、軸線尺寸、需要的細部尺寸標注。建筑的墻線要變成細線。本專業不同系統的管線要用圖例、顏色、圖層來區別。圖例應嚴格按照《給排水制圖標準》設置。
6、堅持嚴格自校。按順序畫平面圖時自校大樣圖,畫系統圖時自校平面圖,最后自校系統圖,提交校審前再自校一次,花費的時間不多,可以避免自相矛盾的錯誤。
圖紙繪制應注意的一些問題
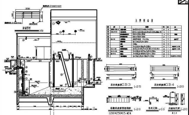
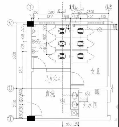
1、衛生間大樣
畫衛生間大樣首先要確定給排水立管的位置,要根據各層平面圖特別是轉換層是否能方便連接考慮,排水立管布置盡量靠近大便器。住宅衛生間沒有蹲廁的應設地漏。公用衛生間宜在洗臉盆、小便斗附近設地漏,并盡量靠墻角,方便地面找坡。如果建筑提資時已經定了地漏位置,有修改的要通知建筑專業修改。根據已往的經驗,廚房不宜設置地漏。
公用衛生間排水管道除按規范設置清掃口外,拐彎處有條件的盡量設清掃口。給水管需要暗裝時DN≤25墻厚至少應為120mm,DN>25墻厚至少應為180mm,不足的應要求建筑加砌墻,空心小型砌塊墻不能暗裝。敷設在樓板內的給水管應按規范要求執行。衛生間大樣給排水系統要按透視圖的要求畫,平面上可以不標注管徑,在軸側圖上詳細標明。
2、系統圖
系統圖不用再按透視圖標準來畫。不用完全按比例畫,各樓層用橫線表示并注上標高,樓層間距可以根據需要適當調整,立管相互關系位置要與平面相符,各種方向的橫管按軸側圖的原則畫,拐彎的地方簡單表示一下就可以了。施工圖編制深度要求的內容不能少,如管道管徑標高、立管底標高等。
3、設計總說明
設計總說明一般分為設計說明和施工說明兩部分,設計說明部分設計依據必須一一列出;各個系統作為一節說明,技術指標(用水定額、消防用水量)要寫出來,采用的系統形式,分區等都要說明,消防系統還要說明設備的選用(消火栓、噴頭)。施工說明部分說明管材選用及安裝,安裝部分只要說明方式就可以了,如PVC-U管,粘接。
小區施工圖設計注意問題
1、設計單體時應該先考慮供水問題。給水系統是否需設屋頂水箱,如需水泵加壓是設總的泵房還是區域泵房(視乎建筑高度及距離遠近等,從造價、節能、安全方面比較厚確定)。消防如要水泵加壓通常按區域消防考慮,泵房單獨建或放在某一建筑內要與建筑專業協商。
2、設計單體給排水平面時要結合總平來確定化糞池及雨水管、溝的出口位置。按深度要求屬單體設計內容的,如在后出的總平圖表示,應在單體的設計說明中列出該部分內容詳見后出的總平圖。
3、總平雨水設計要詳細計算。
4、核對業主提供的市政接口資料,以免排不出去,要說明施工前核對市政接口的情況,有問題先通知設計院修改再施工。
5、仔細核對其他專業的管線,避免交叉,特別是非設計院承接的內容,如通信、電話、有線電視、管道煤氣等管線,必須在這些專業內容施工前協調好標高問題。
圖紙會審
圖紙會審時有需要業主、施工監理單位特別注意的問題先提出。施工監理單位提出的疑問要一一解答。會審紀要是由監理單位編寫的,與設計圖紙具有同等法律效力,送到單位蓋章時應仔細核對其中提出的問題及答復記錄。
工地處理
會審后施工過程出現問題時,盡量通過電話聯系解決,確實說不清楚的要與對方約定時間到工地處理問題,處理完畢有需要的應出修改通知。非設計錯誤而對方提出的合理修改意見,要對方來正式文件提出要求作為修改依據,并在修改通知中注明。
竣工驗收
按新的驗收規定,由設計院、監理、施工單位3方檢查并給出驗收結論,發出整改通知單,質檢站主持驗收、參與檢查并監督全過程。首先由參與建設單位分別介紹項目情況,通常由建筑專業代表設計院發言。然后分組檢查,一般分為外觀實測組、水電組、資料組,檢查本專業相關內容時,重點看是否按圖施工、是否達到設計要求、選用設備是否合格產品等,有問題記錄下來。最后總結時分專業提出存在的問題,由建筑專業給出驗收結論。
更多相關信息 還可關注中鐵城際公眾號矩陣 掃一掃下方二維碼即可關注

文章推薦
- “全域土地綜合整治”的5個建設內容和6個整治模式
- 上海:《關于深入開展全市域土地綜合整治 助推郊野空間提質增效的實施意見》解讀
- 陽泉市規劃和自然資源局召開全域土地綜合整治工作專題會
- 工業園區“定制化”供水:中鐵城際智慧水務系統如何匹配高純度用水需求?
- 農村供水“最后一公里”破局:中鐵城際供水智慧系統如何解決分散站點運維難題?
- AI+物聯網:中鐵城際智慧供水系統如何從“被動搶修”轉向“主動防御”?
- 市政道路設計流程與技巧:新手快速上手的6個核心步驟
- 市政道路設計關鍵要點:從線形規劃到管線綜合的避坑指南
- 2025市政道路設計最新規范與全流程解析
- 自然資源部:推進全域土地綜合整治 已經累計整治超1000萬畝




